East Side Office

Mietinteressentenplanung für eine Bank, Am Postbahnhof, Mühlenstraße, Berlin –
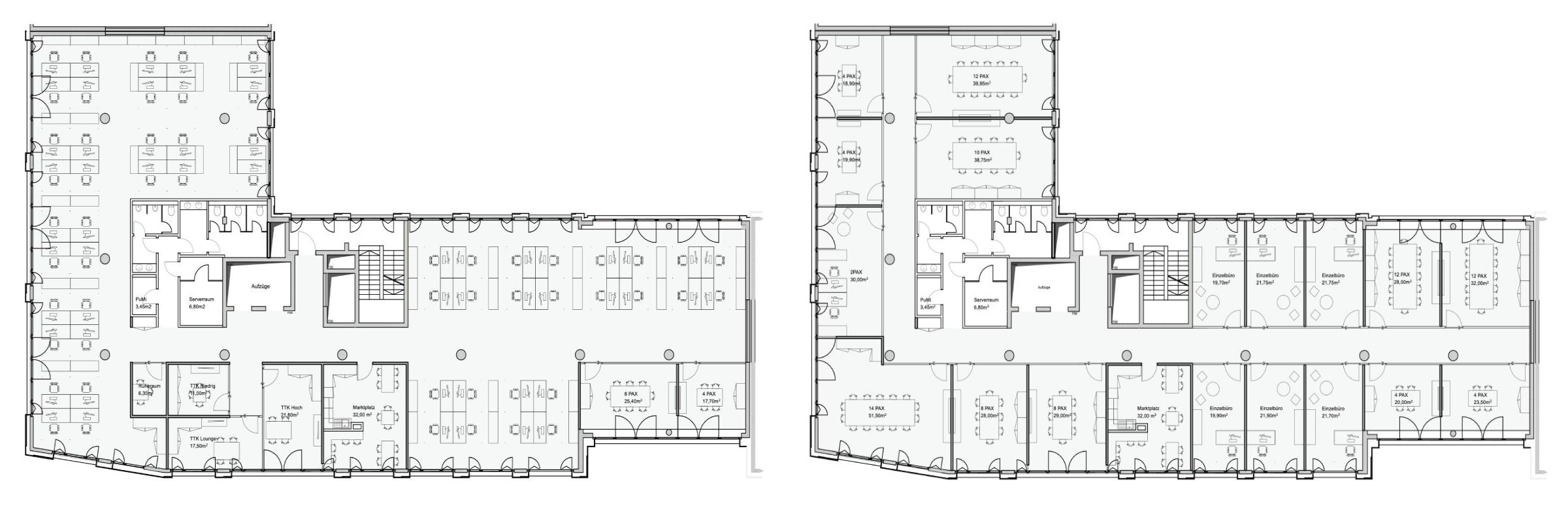
Die Gewerbefläche im 1. und 2. Obergeschoss des Hochhauses wurde für den möglichen zukünftigen Nutzers anhand eines detaillierten Raumprogramms umgeplant. Für den Umbau wurden die Einheiten in den zwei Obergeschossen räumlich neu organisiert und entsprechend der Anforderungen des Mieters abgestimmt.

Architektur

Direktauftrag
Bearbeitungszeitraum 2025

Gebäudeplanung LP 1-2
Nutzfläche 1.450 m2
Bausumme o.A.

Team: HIH

East Side Office_PROJEKT